0
Skip to Content
Projects
About
Contact
Open Menu
Close Menu
Projects
About
Contact
Open Menu
Close Menu
Projects
About
Contact
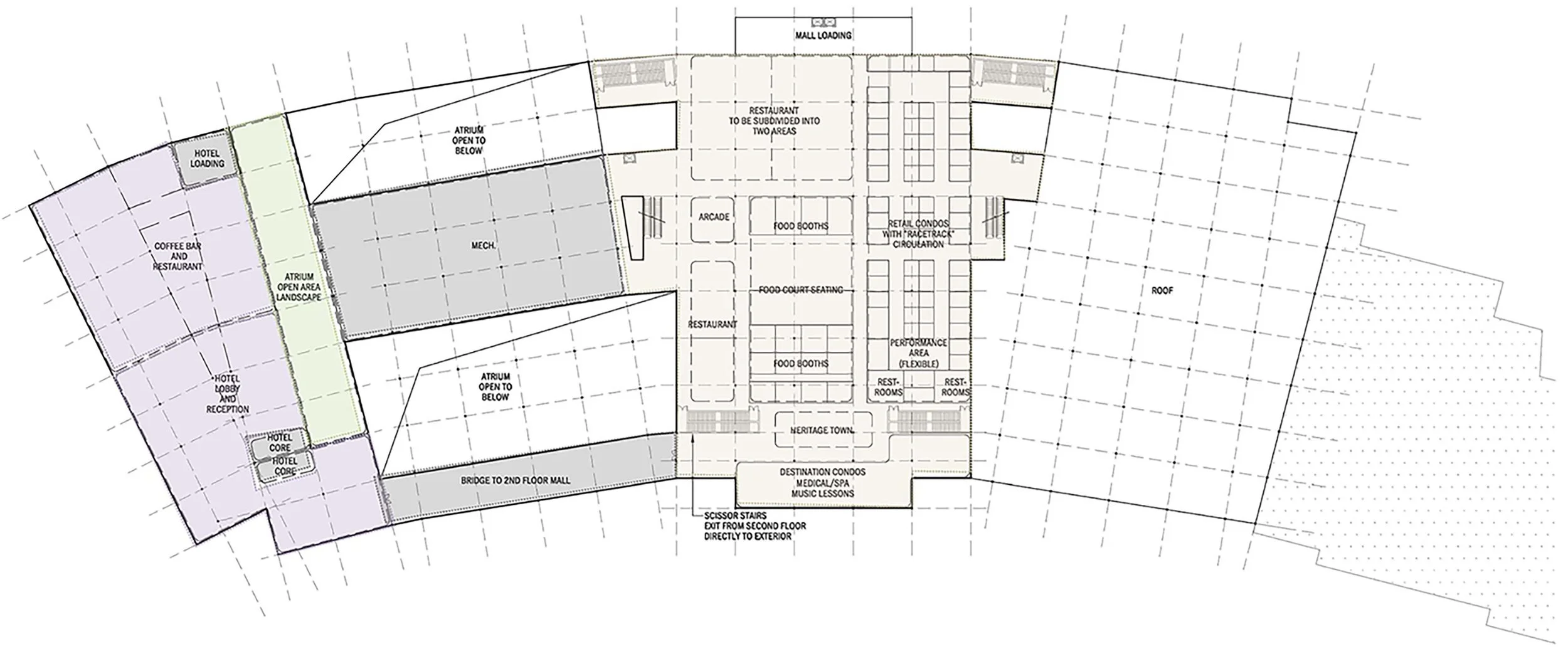
Pacific Mall, Silicon Valley, California
back to Projects