0
Skip to Content
Projects
About
Contact
Open Menu
Close Menu
Projects
About
Contact
Open Menu
Close Menu
Projects
About
Contact
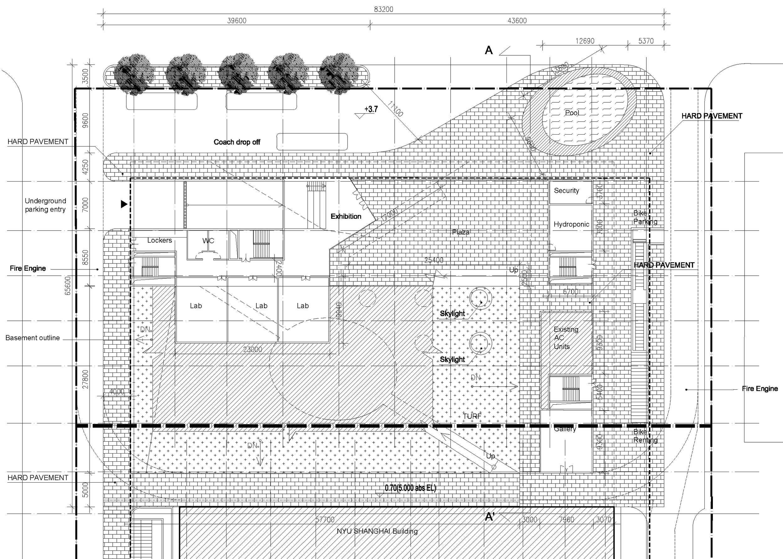
NYU Shanghai Extension, Shanghai, China
back to Projects